Omschrijving Molenweg 13

Welkom aan de Molenweg!

Gelegen in de kern van Balkbrug, nabij de dorpsvoorzieningen en tegenover de nieuwe Poiesz supermarkt bieden wij deze fraaie starterswoning aan. De woning is gelegen op een prima kavel met achtertuin op het zuiden en achterom. Door de jaren heen is de woning voorzien van kunststof kozijnen en een dakkapel op de tweede verdieping. De voor- en achtertuin zijn onderhoudsarm wat maakt dat het bij de zomerdag puur genieten is, zonder uren te tuinieren.

Stap de woning binnen en laat je verrassen door de prettige lichtinval en de leefruimte.
De woonkamer is voorzien van sfeervolle gashaard alsmede radiatoren. Aan de achterzijde tref je de eethoek met verbinding tot de nette keuken, welke is voorzien van de nodige inbouwapparatuur. Grenzend aan de keuken is de geïsoleerde bijkeuken met toegang tot de achtertuin.

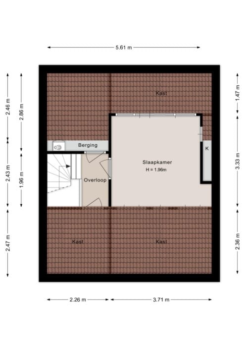
Via de brede hal met trapkast, toilet en trapopgang stap je richting de eerste verdieping. Aldaar zijn een drietal slaapkamers, ruime badkamer en separate wasruimte. Via een vaste trap kom je op de tweede verdieping waar de vierde slaapkamer is gesitueerd.

Op korte afstand van de woning treft je de sportgelegenheden van het dorp, horeca, de supermarkt, welkoop alsmede mooie wandelroutes en uiteraard het Heuveltjes Bosbad.

Al met al een prettige tussenwoning gelegen op een levendige locatie in het dorp.
Een woning met voldoende leefruimte (120m²) en een mooie opstart voor een starter op de woningmarkt! Benieuwd als dit je nieuwe thuis gaat zijn? Neem dan gerust contact op voor het inplannen van een bezichtiging.

Enkele kenmerken:
– Aanvaarding in overleg.
– Energielabel B.
– Grotendeels kunststof kozijenen.
– Verwarming middels Intergas cv ketel, bj. 2025. Betreft een huurketel.
– Achtertuin op het zuiden. Totale kavel 121m².
– De slaapkamer aan de achterzijde is voorzien van airco.

Vragen of een bezichtiging plannen?

Maandag t/m vrijdag: 08:30 - 18:00
Zaterdag: Op afspraak
Buiten kantooruren telefonisch bereikbaar

0523 291 292

Overdracht

Prijs €325.000
Status Verkocht onder voorbehoud
Aanvaarding In overleg

Indeling

Woonoppervlakte 120 m²
Perceel 121 m²
Inhoud 449 m³
Aantal kamers 6
Slaapkamers 4
Badkamers 1

Bouw

Type woning Woonhuis
Soort woonhuis Tussenwoning
Soort bouw Bestaande bouw
Bouwjaar 1965
Soort dak Zadeldak

Energie

Energielabel B
Isolatie Dakisolatie, Muurisolatie, Vloerisolatie, Dubbel glas, Volledig geisoleerd
Verwarming Cv ketel, Gashaard
Warm water Cv ketel
Cv-Ketel Intergas

Locatie

Adres Molenweg 13
Postcode / Stad 7707 CA Balkbrug
Provincie Overijssel

Video impressie

Neem contact met ons op Dan laten we snel weten wat we voor je kunnen betekenen!

Contact opnemen

Wonen waar jij je thuis voelt